Sportsman Series
The 40’ Bass & Walleye Houseboats
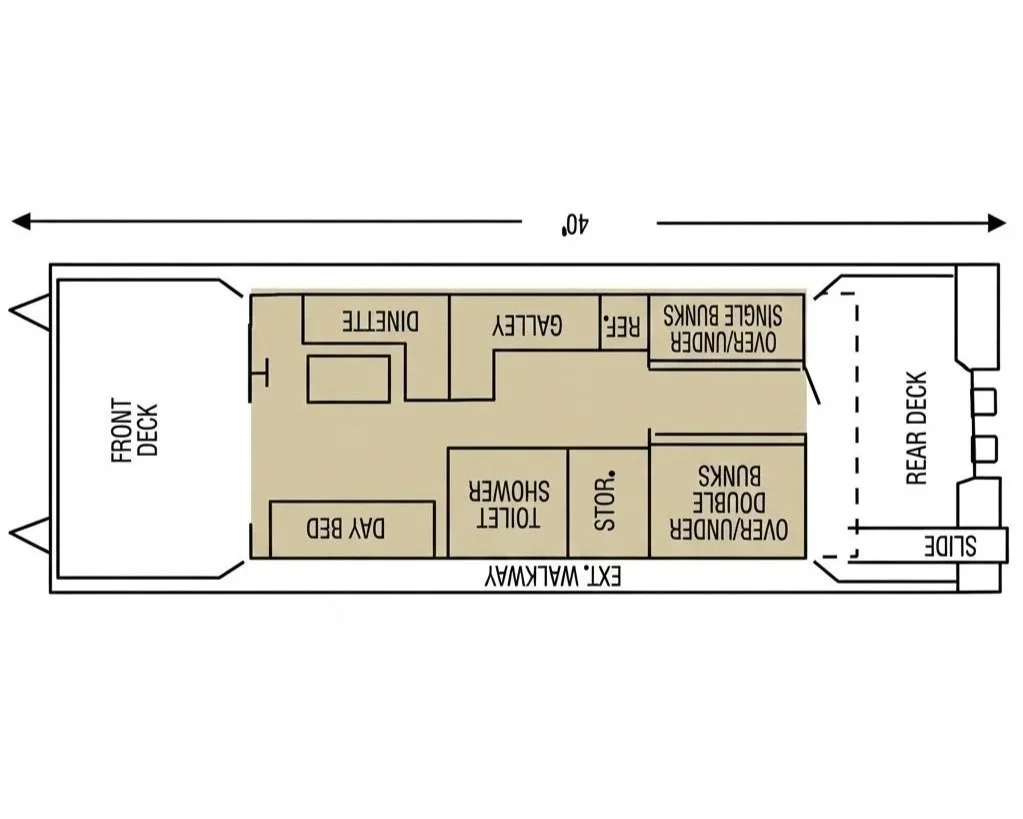
The Angler’s Flagship
Sleeps 4-6 (5 adults comfortably)
When you have a full squad—whether that’s a serious tournament team hunting trophy pike or a bachelor party looking for a legendary weekend—you need a vessel that can handle the crew and the gear. Enter the Bass and the Walleye.
These are the "Big Dogs" of the Sportsman class. They take the rugged, go-anywhere spirit of the smaller boats and super-size it, offering the ultimate balance of fishability and social space.
The Highlights
The Exterior (360-Degree Dominance): The defining feature of the Bass and Walleye is the Full Wrap-Around Deck. Unlike standard houseboats, you have wide walkways running down both the port and starboard sides.
For the Angler: This is a 40-foot casting platform. You can drift a shoreline and have guys fishing off the bow, stern, and both sides simultaneously without tangling lines. If a monster smallmouth makes a run around the boat, you can follow him all the way around.
For the Crew: It means easy movement. Loading coolers, passing gear, and docking the boat is seamless because you have access to every cleat and corner.
The Main Cabin (Command Central): Step through the forward sliding door and you’ll feel the difference in width and volume. This is your social hub.
Starboard Side (The Galley & Dinette): You have a large booth Dinette that serves as the strategy table for morning map study and the poker table for late-night laughs. Behind it is a robust Galley with extended counter space, a stove/oven, and a large refrigerator. It’s built to feed a hungry crowd, whether you’re grilling ribeyes or frying up a shore lunch.
Port Side (The Lounge): Opposite the dining area is a spacious Day Bed. It’s the prime spot for a mid-day nap after the morning bite, and at night, it converts to sleeping quarters.
The "Barracks" (Sleeping Quarters): Moving aft, we see why these boats are favorites for groups. The sleeping configuration is designed to stack the crew efficiently so everyone gets a mattress.
Starboard Bunks: A set of Over/Under Double Bunks. These are heavy-duty, spacious beds capable of sleeping two adults each (or one guy who likes his space).
Port Bunks: A set of Over/Under Single Bunks. Perfect for the single guys or the "scouts" of the trip.
Note: Combined with the convertible dinette and day bed, this layout swallows up gear bags and sleeping bags with ease.
The Head & Storage: Positioned mid-ship on the port side is the bathroom with a hot shower. Just aft of that is a dedicated Storage Closet. This is a crucial feature for the 40-footer—a place to stash rain gear, rod cases, and extra provisions so the main cabin stays clear for the party.
The Aft Deck & "Penthouse": The back deck is your staging ground for the water. But the real draw is the spiral staircase leading to the roof.
The Upper Deck: On the 40-foot models, this space is massive. It’s a huge, flat dance floor in the sky. Use it to scout for weed lines, lay out in the sun, or set up lawn chairs for "sundowner" drinks while you recount the one that got away.
The Slide: The signature water slide off the back completes the package. Because no matter how old the group is, the first guy to slide into the lake officially starts the vacation.
Common Questions
[ FAQ ]
-
The Sportsman 40 is the largest boat in our fleet that still features Full Walkaround Decks. On our bigger "Getaway" boats (44’ and up), the cabin stretches the full width of the vessel to maximize indoor living space. On the Sportsman 40, we kept the cabin narrower to give you wide walkways on both the port and starboard sides. This means you can fish 360 degrees around the boat without ever stepping inside—a critical feature for serious anglers who don’t want to stop casting just to get from the bow to the stern.
-
This is the perfect two-couple boat. While the 35’ can technically sleep four, it’s cozy. The Sportsman 40 gives you that critical extra elbow room. With a layout that features convertible double bunks and a more spacious main salon, two couples (or a group of 4-5 buddies) can share the space without feeling like you’re constantly bumping into each other. It’s the "sweet spot" between intimacy and capacity
-
It handles with the same agility, just with a bit more weight. Because it shares the same pontoon-style hull design as its smaller siblings, it is incredibly stable and tracks well in the water. It doesn't catch the wind quite as much as the double-decker "Birch Lake" series, making it a very forgiving boat for captains who want a larger vessel but are wary of driving a "floating condo.
-
You choose the Sportsman 40 if your priority is The Outdoors, not the Indoors. If you plan to spend 80% of your time inside playing cards and cooking elaborate meals, take the big boat (50’). But if you plan to spend 80% of your time with a line in the water, sitting on the deck, or exploring tight bays, the Sportsman 40 is superior. It allows you to park in shallower, tighter spots that the 50-footers can’t reach.
-
No, and that’s by design. The Sportsman series utilizes an "Open Plan" concept to maximize airflow and social connection. Sleeping areas are converted from the dinette and sofa/bunks at night. If you require a private door that closes for your bedroom, you’ll want to look at our Birch Lake Series (50’+). But if you’re here to fish and crash, the open layout is efficient and comfortable.
-
Absolutely. The Sportsman 40 features a significant galley upgrade over the 30’ model. You get extended counter space and a full-size refrigerator, which is a game-changer for keeping a week’s worth of bait and beer cold. You can easily prep a full shore lunch or a steak dinner in this galley.
-
Yes, the decks have railings, but parents of very small toddlers often prefer the 44’ Northern or 50’ Otter because the "full-width cabin" eliminates the side walkways, essentially creating a giant playpen inside. The Sportsman 40 is fantastic for kids who are old enough to fish, swim, and use the waterslide, but it does require more supervision for the "toddler" stage since there is water access on all four sides of the boat.

