Getaway Series
The 38’ Mallard & Seagull Houseboats
The "Wide-Body" Cabin on the Water
Sleeps 4-6 comfortably
At 38 feet, the Mallard and Seagull are the definition of efficient, vintage adventure. They’re not luxury yachts; they’re practical, mobile cabins designed to get you away from the crowds with everything you need right onboard.
The Details
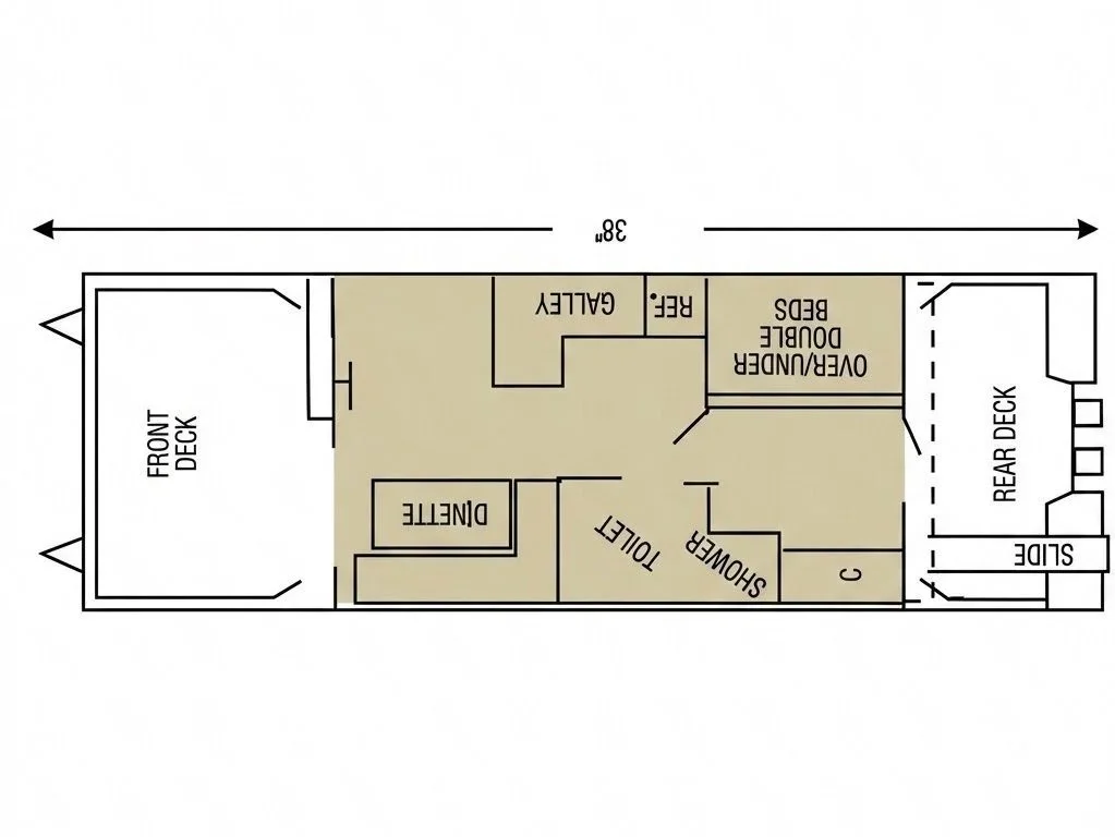
The Aft Deck and Penthouse Deck: You step aboard onto the back deck. This is your staging area. There’s ample room here for your coolers, tackle boxes, and wet gear. It’s the perfect spot to sit on the bench, watch the wake, and leave the stress of the city behind you. It’s also where you’ll see your buddies from the upper deck sling by on the water slide later in your trip…
You’ll want to climb the spiral staircase to the roof. This is your 360-degree observation platform. Use it to scout for rock piles and navigation buoys, watch for eagles, or just lay out a towel and soak up the sun. It’s the best view on the lake.
The Mid-Ship "Bunkhouse": Step through the sliding glass door to find the efficient sleeping quarters. Tucked neatly into the alcove is one set of double-sized bunk beds. These aren't tiny camp cots; they are solid, comfortable beds that maximize space so you can sleep the crew without wasting square footage.
The Head: Just across from the bunks is the marine head. It’s equipped with a toilet and a sink with a pull-out shower sprayer. It’s simple, it’s compact, and it works.
The Kitchen/Galley: On the starboard side, you have a full galley with a propane stove/oven, sink, and refrigerator. Imagine frying up fresh walleye filets right here while looking out the window at the pines.
The Dinette: On the port side is a classic booth dinette. By day, it's the spot for coffee and reviewing the lake map. By night, the table drops down to convert into a full-size double bed, perfect for the night owls of the group.
The Helm and Front Deck: Up at the front of the cabin is the nerve center—The Captain’s Helm. Positioned right by the front deck access, this is where you captain the ship. With the wheel in hand and a clear view of the water ahead, navigation is intuitive and easy. Beyond the helm is the Front Deck, featuring a BBQ and additional seating.
Common Questions
[ FAQ ]
-
The difference is Width vs. Walkaround. The Sportsman series boats (30’, 35’, 40’) have narrow cabins with walkways on the outside for fishing. The Getaway 38 pushes the cabin walls out to the very edge of the hull. You lose the side walkways, but you gain significant interior square footage.
Choose the Sportsman if you want to fish 360 degrees around the boat.
Choose the Getaway 38 if you want a larger living room, a wider aisle, and more space to play cards if it rains.
-
Not at all. In fact, at 38 feet, it is the "sweet spot" for many new captains. It is shorter than the Sportsman 40, making it very maneuverable in tight bays. The only trade-off is that because the cabin is wider, you don’t have quite the same visibility down the sides as you do on the Sportsman. But don't worry—our dock staff will teach you exactly how to use your mirrors and your crew to park like a pro.
-
The Getaway 38 is famous for its efficient "Bunkhouse" layout. Unlike the smaller boats where beds are often converted from sofas, the Mallard and Seagull feature a private mid-ship alcove with permanent Double-Sized Bunks. These aren't tiny camp cots; they are wide enough to be genuinely comfortable. Combined with the dinette that converts into a full-size bed, you can sleep a family of 4-6 without anyone sleeping on the floor.
-
You choose the 38’ for intimacy and value. The 44’ is fantastic for larger groups (8 people), but if you are just a single family (Parents + 2-3 kids) or two couples, the 44’ might feel like "too much boat." The 38’ gives you all the "big boat" features—the upper sun deck, the water slide, the full kitchen—but in a package that feels cozy and is easier on the budget.
-
This is actually one of our best boats for toddlers. Because there are no side walkways, the interior cabin effectively acts as a large, enclosed playpen. You don't have to worry about a little one wandering out a side door and falling in the water while you are cooking dinner. The only way out is the front or back door, which makes supervision much easier for parents of curious crawlers.
-
By default, the boat runs on 12-volt power (like a car), which charges phones and runs the lights. However, if you need standard household power (110v) for a CPAP machine, blender, or toaster, just ask us! We will load a portable Honda generator onto the boat for you at no extra charge.
-
Absolutely. You still have a spacious front deck and a large rear deck for casting. The only thing you can't do is walk a fish from the front to the back along the side rail. Most serious anglers on the Getaway 38 simply tow a small fishing boat (a "skiff") behind the houseboat to get into the really tight fishing spots.

